福屋不動産販売 鶴見緑地店
大阪府 / 長堀鶴見緑地線 横堤駅
キッズスペースあり
駐車場あり
福屋不動産販売 鶴見緑地店の特集
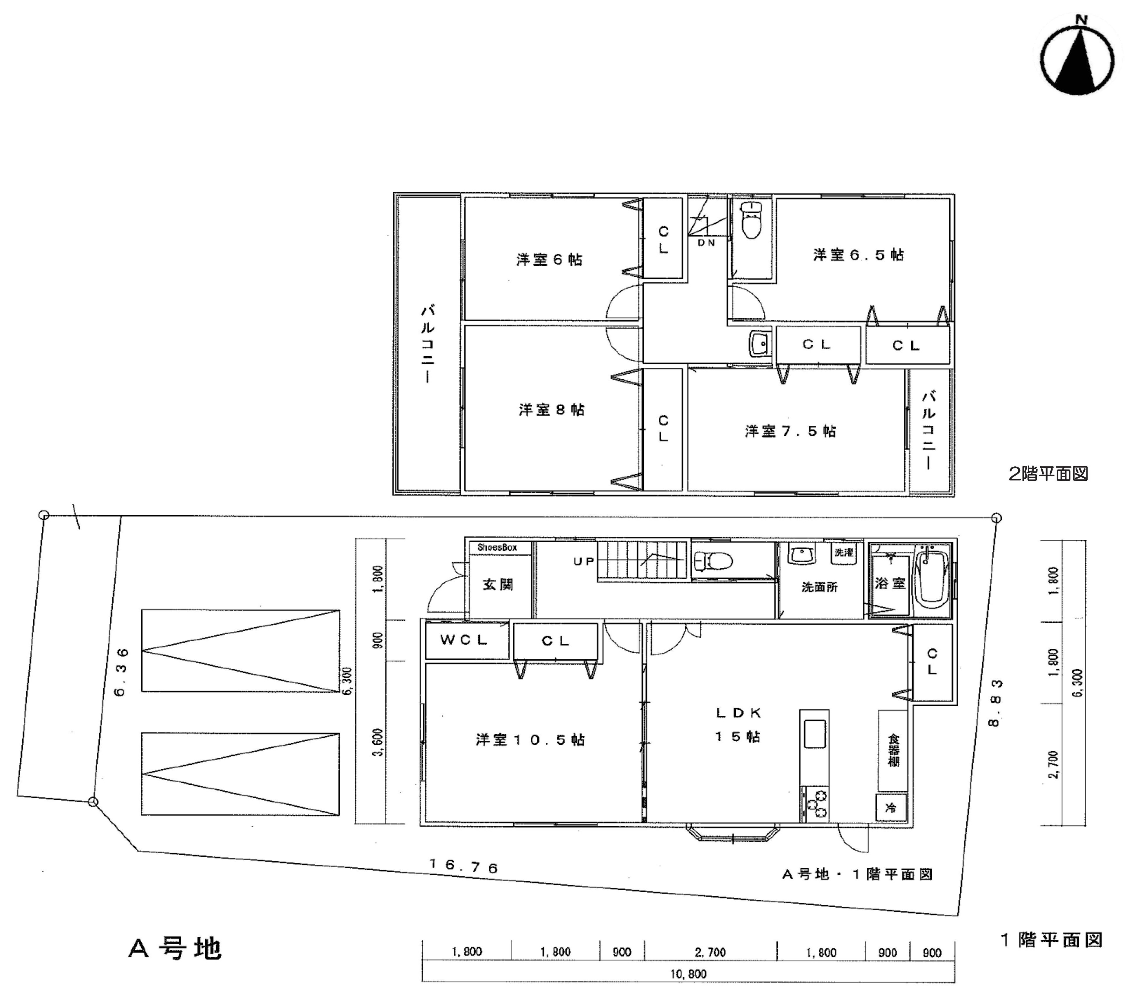
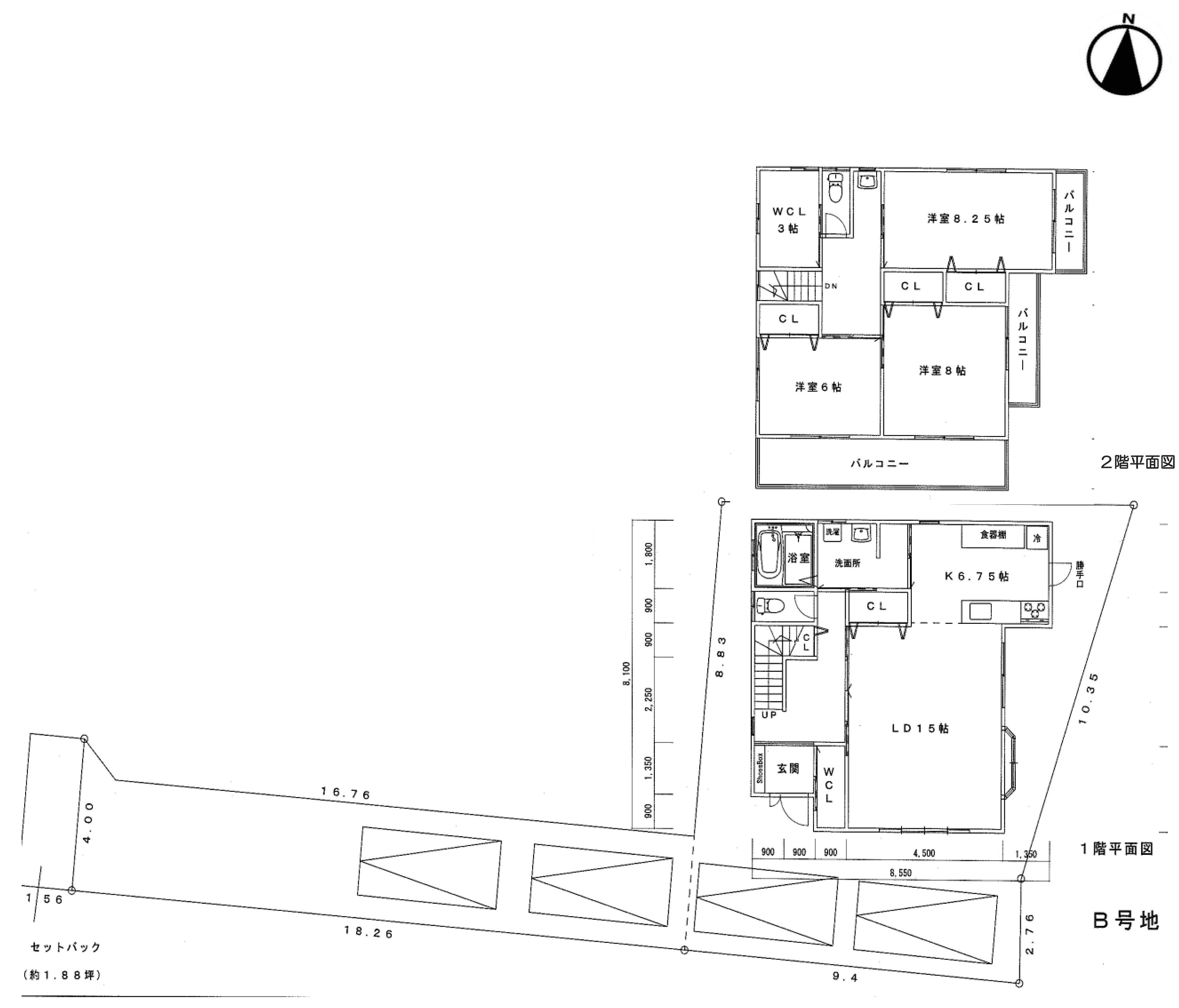
■建築条件無し売土地■
30
件 中 1 ~ 30件を表示
その他の物件特集
表示件数
並び替え
30
件 中 1 ~ 30件を表示
スマートフォンで
店舗ページを見る
福屋不動産販売 鶴見緑地店
大阪府 / 長堀鶴見緑地線 横堤駅
キッズスペースあり
駐車場あり
大阪市鶴見区、大阪市城東区、大東市、東大阪市、大阪市旭区での不動産購入・不動産売却/査定は株式会社福屋不動産販売 鶴見緑地店へお任せください。
東京都・大阪府・兵庫県・京都府・奈良県・滋賀県・福岡県に90店舗以上のネットワークがあるFUKUYAグループ。
大阪府の新築・中古マンション・新築一戸建て・中古一戸建て・土地/売り地・投資・収益用物件・店舗・事業用物件
の一覧はこちら。大阪市鶴見区の物件をお探しのお客様にぴったりの物件をご紹介します!








