福屋不動産販売 八尾店
大阪府 / 近鉄大阪線 近鉄八尾駅
キッズスペースあり
駐車場あり
八尾店が担当店舗の物件一覧
地域
- 大阪府 -
- 大阪市平野区、八尾市、松原市、柏原市、藤井寺市、東大阪市
条件
指定なし
)
表示件数
並び替え
- 新着
- 閲覧済
画像準備中
店舗付住宅
価格1,980万円
お気に入り
- 所在地
- 大阪府東大阪市角田2丁目
- 交通
- 近鉄けいはんな線 荒本駅 徒歩13分
近鉄けいはんな線 吉田駅 徒歩17分
- 間取り
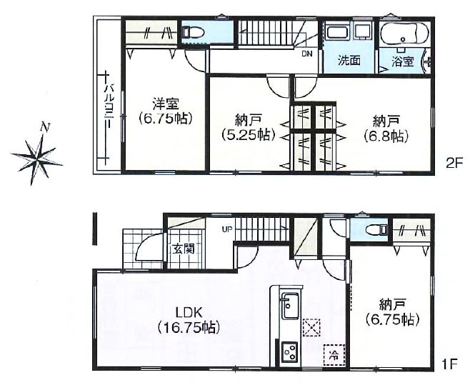
- 4DK
- 築年月
- 1985(昭和60年)年2月(築41年)
- 土地面積
- 86.10㎡
- 建物面積
- 103.41㎡
- 現況
- 居住中
- 主要採光面
- -
- 4DK
- 103.41㎡
- 86.10㎡
画像準備中
画像点数:0枚
★店舗付き住宅
スマートフォンで
店舗ページを見る
福屋不動産販売 八尾店
大阪府 / 近鉄大阪線 近鉄八尾駅
キッズスペースあり
駐車場あり
八尾市、柏原市、藤井寺市、東大阪市、大阪市平野区での不動産購入・不動産売却/査定は株式会社福屋不動産販売 八尾店へお任せください。
東京都・大阪府・兵庫県・京都府・奈良県・滋賀県・福岡県に90店舗以上のネットワークがあるFUKUYAグループ。
大阪府の新築・中古マンション・新築一戸建て・中古一戸建て・土地/売り地・投資・収益用物件・店舗・事業用物件
の一覧はこちら。八尾市の物件をお探しのお客様にぴったりの物件をご紹介します!








