福屋不動産販売 北千住店
東京都 / JR常磐線 北千住駅徒歩7分
キッズスペースあり
中古マンション
GROWS堀切菖蒲園AZ
- 価格
-
4,480万円
ローンシミュレーション
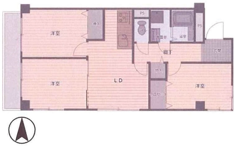
- 間取り
- 2LDK
- 所在地
- 東京都葛飾区堀切3丁目
- 交通
- 京成電鉄本線 堀切菖蒲園駅 徒歩10分 他
- 築年月
- 2017(平成29年)年11月(築8年)
- 所在階
- 5階/地上10階
- 専有面積
- 55.35㎡(16.74坪)壁芯
- 費用
-
管理費:12,180 円
修繕積立金:7,750 円
-
ペットOK
-
駅近
-
新築
-
南向き
-
リフォーム
-
駐車場あり
-
オール電化
-
オートロック
-
角部屋
「GROWS堀切菖蒲園AZ」のおすすめポイント
![]()
リフォーム
![]()
オートロック
![]()
ペットOK
![]()
角部屋
リフォーム済みの物件です
中古物件のリフォーム済み物件です。
オートロックの物件です
セキュリティを高めるオートロックの物件です。
ペットOK(規約による制限あり)の物件です
犬や猫などのペットと一緒に住むことが出来るマンションです。(規約による制限あり)
角部屋の物件です
フロアの端に位置する角部屋の物件です。
GROWS堀切菖蒲園AZの物件情報
基本情報について
| 価格 |
4,480万円 |
||
|---|---|---|---|
| 所在地 | 東京都葛飾区堀切3丁目 (地図を見る) | ||
| 交通 |
京成電鉄本線 堀切菖蒲園駅 徒歩10分 (堀切菖蒲園駅の一覧を見る)
京成電鉄本線 お花茶屋駅 徒歩14分 (お花茶屋駅の一覧を見る) 東武伊勢崎・大師線 堀切駅 徒歩29分 (堀切駅の一覧を見る) |
||
| 築年月 | 2017(平成29年)年11月(築8年) | ||
| 間取り | 2LDK | ||
| 階数/階建 | 5階/地上10階 | ||
| 専有面積
専有面積 分譲マンションなどの区分所有権建物において、区分所有者が単独で所有している部分の専有部分の面積を「専有面積」といいます。 |
55.35㎡(16.74坪)壁芯 | ||
| 用途地域
用途地域 都市計画法に基づく制度で、建築できる建物の制限を定めた地域のことを「用途地域」といいます。 |
準工業 | ||
| バルコニー面積 | 4.51㎡ | ||
| 主要採光面
主要採光面 室外の自然光を、窓などを通して室内に採り入れることを「採光」といい、主に採光を得る面の事を「主要採光面」と言います。 |
南西 | その他採光面 | - |
| 現況 | 空 | 引渡可能日 | 相談 |
費用関連について
| 管理費等 | 12,180 円 | 修繕積立金
修繕積立金 マンションの共用部分を維持・修繕するための「大規模修繕」などに必要な資金をまかなうため、積み立てておく金銭を「修繕積立金」といいます。 |
7,750 円 |
|---|---|---|---|
| その他の費用 | - | ||
| 駐車場 | 空無 | ||
詳細情報について
| 借地料 | - | 借地期間
借地期間 借地借家法により定められている、建物を所有する目的で設定された地上権、または建物を所有する目的で設定された土地賃借権を「借地権」といい、その期間を「借地期間」といいます。 |
- |
|---|---|---|---|
| 総戸数 | 26 | 土地権利 | 所有権 |
| 構造
構造 物件の造りを表示しています。 |
RC | 管理会社 | AZEST-PRO(株) |
| 管理員の勤務形態 | 全部委託 | 管理人 | 日勤 |
| 施工会社 | 菊池建設(株) | 増改築 | - |
| 間取詳細 | 2LDK | 建築確認番号 | - |
| その他の条件 | - | 特記事項 | ペット相談、日当り良好、管理人日勤、24時間セキュリティ、角部屋 |
| 設備 | 上水道、下水道、都市ガス、追焚機能、浴室乾燥機、温水洗浄便座、浄水器、カウンターキッチン、収納スペース、室内洗濯機置場、バイク置場、給湯、エレベーター、宅配BOX、駐輪場、照明器具、CATV、BS端子、CS、オートロック、モニタ付インターホン | ||
| その他の設備 | - | ||
| 備考 | 令和7年9月リフォーム済:ガスコンロ・キッチン水栓・アコーディオン網戸・トイレ便座・洗面化粧台鏡一部・浴室鏡・浴室水栓・レジスター交換/全クロス貼替/ルームクリーニング(その他箇所は担当迄) インターネット使用料:月額750円 ペット飼育可(規約による制限有) 管理費・修繕積立金・駐車場料金・その他費用に関しては、随時変動する場合があることを予めご承知おき下さい。 |
||
| 取引態様 | 仲介 | ||
| 情報更新日 | 2025/11/30 | 次回更新予定日 | 2025/12/30 |
設備・特徴について
| 電気・水道・ガス | 上水道、下水道、都市ガス |
|---|---|
| バス・トイレ | 追焚機能、浴室乾燥機、温水洗浄便座 |
| キッチン | 浄水器、カウンターキッチン |
| 収納 | 収納スペース |
| 設備・機能 | 室内洗濯機置場、バイク置場、給湯、エレベーター、宅配BOX、駐輪場、照明器具 |
| 冷暖房 | - |
| TV・通信 | CATV、BS端子、CS |
| セキュリティ | オートロック、モニタ付インターホン |
| 庭・バルコニー | - |
| その他 | - |
かんたん月額支払い試算
| 物件価格 | お借入額 | 自己資金 | 返済期間 | お借入れ金利 | 想定お支払額(月) | |
|---|---|---|---|---|---|---|
4,480万円 |
4,480万円 |
万円 | % | = |
万円 |
- ※試算結果はあくまでお支払の目安であり、実際の契約内容や金利動向により実際のご返済額と異なる場合がございます。
- ※実際のローン契約を行う場合は金融機関へご確認ください。
- ※上記費用以外に諸経費・修繕積立金・管理費などがかかる場合がございます。
- ※実際のローン契約の際、手数料や印紙税など別途諸経費がかかる場合がございます。
北千住店のおすすめ物件特集
スマートフォンで
店舗ページを見る
福屋不動産販売 北千住店
東京都 / JR常磐線 北千住駅徒歩7分
キッズスペースあり


































