中古戸建
昭島市大神町4丁目
- 価格
-
1,730万円
ローンシミュレーション
- 間取り
- 4LDK
- 所在地
- 東京都昭島市大神町4丁目
- 交通
- 青梅線 昭島駅 徒歩25分 他
- 築年月
- 2004(平成16年)年11月(築21年)
- 土地面積
- 115.02㎡(34.79坪)-
- 建物面積
- 91.50㎡(27.67坪)-
-
ペットOK
-
駅近
-
新築
-
南向き
-
リフォーム
-
駐車場あり
-
オール電化
-
オートロック
-
角部屋
「昭島市大神町4丁目」のおすすめポイント
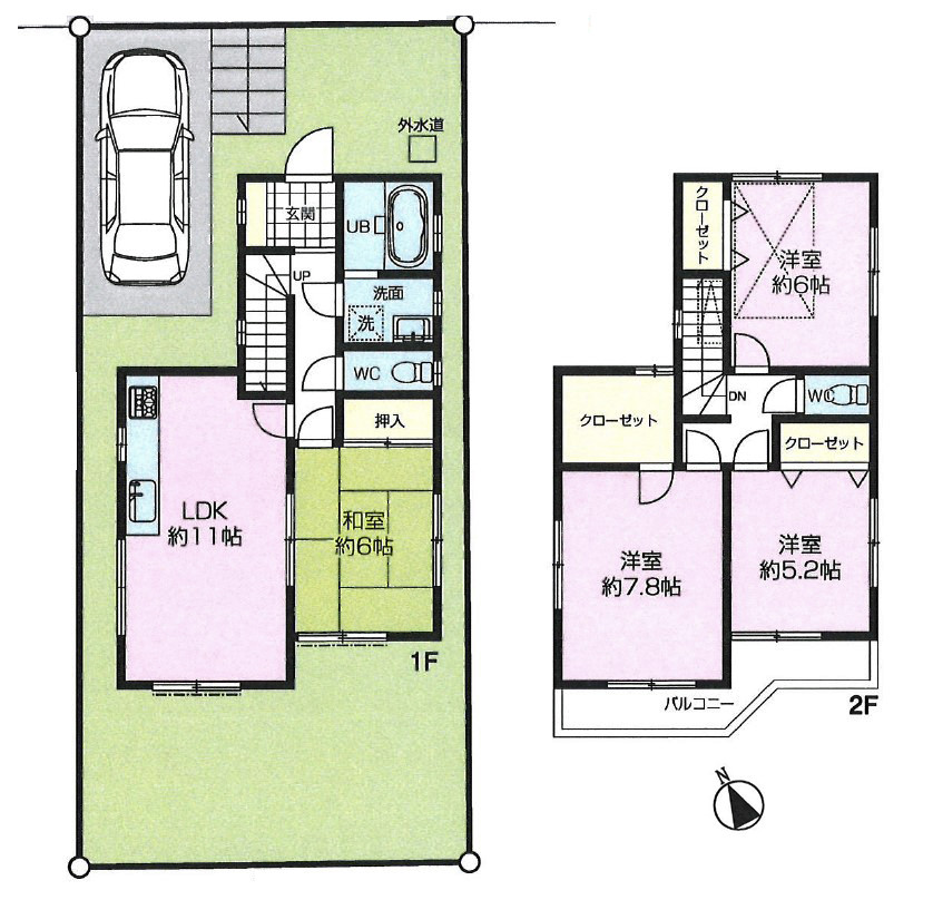
◆約11帖のLDKに和室約6帖が隣接!
◆季節物の収納に便利なグルニエ付!
◆主寝室約7.8帖にはWIC付きでお部屋をすっきりと使えます!
◆前面道路約6m、旧大型分譲地内の整った街並み!
![]()
駐車場あり
駐車場がある物件です
物件もしくは近隣に駐車場がある物件です。
昭島市大神町4丁目の物件情報
基本情報について
| 価格 |
1,730万円 |
||
|---|---|---|---|
| 所在地 | 東京都昭島市大神町4丁目 (地図を見る) | ||
| 交通 |
青梅線 昭島駅 徒歩25分 (昭島駅の一覧を見る)
中央本線 立川駅 バス乗車31分「成隣小学校」バス停歩4分 (立川駅の一覧を見る) 青梅線 昭島駅 バス乗車18分「北大神」バス停歩8分 (昭島駅の一覧を見る) |
||
| 築年月 | 2004(平成16年)年11月(築21年) | ||
| 間取り | 4LDK | ||
| 建物面積 | 91.50㎡(27.67坪)- | ||
| 土地面積 | 115.02㎡(34.79坪)- | ||
| 用途地域
用途地域 都市計画法に基づく制度で、建築できる建物の制限を定めた地域のことを「用途地域」といいます。 |
1種低層 | ||
| 容積率 | 80.00% | 建ぺい率
建ぺい率 敷地面積に対する建築面積の割合を「建ぺい率」といいます。 |
40.00% |
| 現況 | 空 | 引渡可能日 | 相談 |
費用関連について
| 管理費等 | - | 修繕積立金
修繕積立金 マンションの共用部分を維持・修繕するための「大規模修繕」などに必要な資金をまかなうため、積み立てておく金銭を「修繕積立金」といいます。 |
- |
|---|---|---|---|
| その他の費用 | - | ||
| 駐車場 | 有 0 円 ~ 0 円 | ||
詳細情報について
| 私道
私道 個人の所有する土地で、その道に面している土地の利用を目的に造った道を「私道」といいます。 |
- |
セットバック
セットバック 建物の上階を下階よりも後退させること。また、幅員が4mに満たない道路に接している敷地で、道路の中心線から2mの線まで道路の境界線を後退させること。 |
- |
|---|---|---|---|
| 地目
地目 登記簿に記載されている土地の用途・種類のことを「地目」といい、田、畑、宅地、塩田、鉱泉地、池沼、山林、牧場、原野、墓地、境内地、運河用地、水道用地、用悪水路、ため池、堤、井溝、保安林、公衆用道路、公園、雑種地、学校用地、鉄道用地の23種類に区分されています。 |
宅地 | 地勢
地勢 土地の起伏や海面との位置情報どの土地の概況のことを言います。 |
- |
| 都市計画
都市計画 適正な土地利用、都市施設の整備、市街地開発事業に関する計画で、都市の健全な発展と秩序ある整備を図るため都市計画法の規定により定められたものを「都市計画」といいます。 |
市街化区域 | 国土法届出 | 不要 |
| 接道状況
接道状況 敷地に面した道路の状況。 |
一方( 北東側 幅員約6.0mの公道に約7.3m接道 ) | ||
| 借地料 | - | 借地期間
借地期間 借地借家法により定められている、建物を所有する目的で設定された地上権、または建物を所有する目的で設定された土地賃借権を「借地権」といい、その期間を「借地期間」といいます。 |
- |
| その他制限 | 法22条区域 | ||
| (建物)構造
構造 物件の造りを表示しています。 |
木造 | 建物形式 | 地上2階 |
| 総戸数 | - | 販売戸数 | - |
| 屋根 | - | 土地権利 | 所有権 |
| 施工会社 | - | 増改築 | - |
| 間取詳細 | 4LDK | 建築確認番号 | - |
| その他の条件 | - | 特記事項 | - |
| 設備 | 電気、都市ガス、公営水道、汚水-本下水、雑排水-本下水、トイレ2ヶ所、システムキッチン、Wクロゼット、グルニエ | ||
| その他の設備 | - | ||
| 備考 | 駐車台数は車種によります 告知事項有り 契約不適合責任免責 R8年4月上旬リフォーム完了予定(LDK壁・天井クロス貼替、LDK床フロアタイル張替、和室壁クロス貼替、和室襖・障子・畳張替、ハウスクリーニング) 2023年12月太陽光発電システム設置 | ||
| 取引態様 | 仲介 | ||
| 情報更新日 | 2026/04/03 | 次回更新予定日 | 2026/05/03 |
設備・特徴について
| 電気・水道・ガス | 電気、都市ガス、公営水道、汚水-本下水、雑排水-本下水 |
|---|---|
| バス・トイレ | トイレ2ヶ所 |
| キッチン | システムキッチン |
| 収納 | Wクロゼット |
| 設備・機能 | グルニエ |
| 冷暖房 | - |
| TV・通信 | - |
| セキュリティ | - |
| 庭・バルコニー | - |
| その他 | - |
かんたん月額支払い試算
| 物件価格 | お借入額 | 自己資金 | 返済期間 | お借入れ金利 | 想定お支払額(月) | |
|---|---|---|---|---|---|---|
1,730万円 |
1,730万円 |
万円 | % | = |
万円 |
- ※試算結果はあくまでお支払の目安であり、実際の契約内容や金利動向により実際のご返済額と異なる場合がございます。
- ※実際のローン契約を行う場合は金融機関へご確認ください。
- ※上記費用以外に諸経費・修繕積立金・管理費などがかかる場合がございます。
- ※実際のローン契約の際、手数料や印紙税など別途諸経費がかかる場合がございます。
周辺環境について画像をクリックすると拡大表示されます
昭島市大神町4丁目を購入するなら福屋不動産販売|FUKUYAの物件情報ページ
昭島市大神町4丁目の購入・売却は福屋不動産販売へお任せください。昭島市大神町4丁目に関するご質問・ご相談や内覧予約はお気軽にお問合せ下さい。昭島市大神町4丁目は東京都昭島市大神町4丁目の売り出し中の中古一戸建てです。福屋不動産販売では、昭島市大神町4丁目以外にも東京都昭島市の物件を多数取り扱っています。東京都昭島市でマイホームをお探しの際は福屋不動産販売へお気軽にご相談ください。







