中古マンション
ソルフェスタ赤羽
- 価格
-
5,499万円
ローンシミュレーション
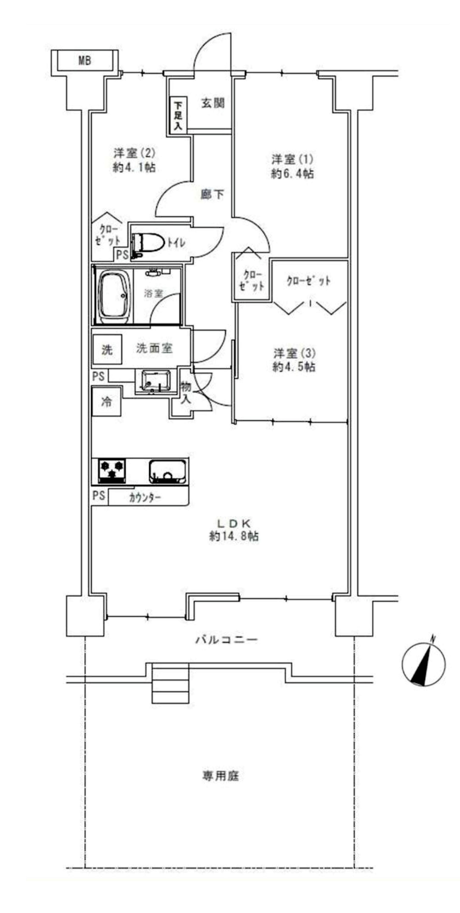
- 間取り
- 3LDK
- 所在地
- 東京都北区赤羽北1丁目
- 交通
- 埼京線 北赤羽駅 徒歩5分 他
- 築年月
- 1996(平成8年)年2月(築30年)
- 所在階
- 1階/地上10階
- 専有面積
- 65.54㎡(19.82坪)壁芯
- 費用
-
管理費:7,500 円
修繕積立金:12,380 円
-
ペットOK
-
駅近
-
新築
-
南向き
-
リフォーム
-
駐車場あり
-
オール電化
-
オートロック
-
角部屋
「ソルフェスタ赤羽」のおすすめポイント
◆専用庭ではガーデニングを楽しめます♪ ◆大切なペットと一緒に暮らせるマンション!
![]()
リフォーム
![]()
オートロック
![]()
ペットOK
![]()
駅近
![]()
駐車場あり
リフォーム済みの物件です
中古物件のリフォーム済み物件です。
オートロックの物件です
セキュリティを高めるオートロックの物件です。
ペットOK(規約による制限あり)の物件です
犬や猫などのペットと一緒に住むことが出来るマンションです。(規約による制限あり)
駅徒歩5分以内の物件です
最寄りの駅まで徒歩5分以内の物件です。
駐車場がある物件です
物件もしくは近隣に駐車場がある物件です。
ソルフェスタ赤羽の物件情報
基本情報について
| 価格 |
5,499万円 |
||
|---|---|---|---|
| 所在地 | 東京都北区赤羽北1丁目 (地図を見る) | ||
| 交通 |
埼京線 北赤羽駅 徒歩5分 (北赤羽駅の一覧を見る)
東京地下鉄南北線 赤羽岩淵駅 徒歩15分 (赤羽岩淵駅の一覧を見る) 京浜東北・根岸線 赤羽駅 徒歩20分 (赤羽駅の一覧を見る) |
||
| 築年月 | 1996(平成8年)年2月(築30年) | ||
| 間取り | 3LDK | ||
| 階数/階建 | 1階/地上10階 | ||
| 専有面積
専有面積 分譲マンションなどの区分所有権建物において、区分所有者が単独で所有している部分の専有部分の面積を「専有面積」といいます。 |
65.54㎡(19.82坪)壁芯 | ||
| 用途地域
用途地域 都市計画法に基づく制度で、建築できる建物の制限を定めた地域のことを「用途地域」といいます。 |
工業 | ||
| バルコニー面積 | 9.60㎡ | ||
| 主要採光面
主要採光面 室外の自然光を、窓などを通して室内に採り入れることを「採光」といい、主に採光を得る面の事を「主要採光面」と言います。 |
南東 | その他採光面 | - |
| 現況 | 空 | 引渡可能日 | 相談 |
費用関連について
| 管理費等 | 7,500 円 | 修繕積立金
修繕積立金 マンションの共用部分を維持・修繕するための「大規模修繕」などに必要な資金をまかなうため、積み立てておく金銭を「修繕積立金」といいます。 |
12,380 円 |
|---|---|---|---|
| その他の費用 | - | ||
| 駐車場 | 有 20,000 円 ~ 20,000 円 | ||
詳細情報について
| 借地料 | - | 借地期間
借地期間 借地借家法により定められている、建物を所有する目的で設定された地上権、または建物を所有する目的で設定された土地賃借権を「借地権」といい、その期間を「借地期間」といいます。 |
- |
|---|---|---|---|
| 総戸数 | 185 | 土地権利 | 所有権 |
| 構造
構造 物件の造りを表示しています。 |
SRC | 管理会社 | 株式会社長谷工コミュニティ |
| 管理員の勤務形態 | 全部委託 | 管理人 | 日勤 |
| 施工会社 | 株式会社長谷工コーポレーション | 増改築 | - |
| 間取詳細 | 3LDK | 建築確認番号 | - |
| その他の条件 | - | 特記事項 | ペット相談、管理人日勤 |
| 設備 | 電気、上水道、下水道、都市ガス、追焚機能、浴室乾燥機、温水洗浄便座、カウンターキッチン、システムキッチン、収納スペース、室内洗濯機置場、バイク置場、給湯、エレベーター、宅配BOX、駐輪場、エアコン、CATV、BS端子、CS、防犯カメラ、オートロック、モニタ付インターホン、専用庭 | ||
| その他の設備 | - | ||
| 備考 | 令和8年3月内装リフォーム済:システムキッチン、ユニットバス、洗面化粧台、トイレ、給湯器、シューズボックス交換/全室壁・天井クロス張替/エアコン(LDK)設置 専用庭使用料:月額700円 駐車場:月額20,000円(令和8年3月現在空有) 駐輪場:1台目無償・2台目月額300円 バイク置場:月額2,000円 自治会費:年額2,400円(任意加入) ペット飼育可(規約による制限有) 管理費・修繕積立金・その他費用に関しては、随時変動する場合があることを予めご承知おき下さい。 |
||
| 取引態様 | 仲介 | ||
| 情報更新日 | 2026/03/19 | 次回更新予定日 | 2026/04/18 |
設備・特徴について
| 電気・水道・ガス | 電気、上水道、下水道、都市ガス |
|---|---|
| バス・トイレ | 追焚機能、浴室乾燥機、温水洗浄便座 |
| キッチン | カウンターキッチン、システムキッチン |
| 収納 | 収納スペース |
| 設備・機能 | 室内洗濯機置場、バイク置場、給湯、エレベーター、宅配BOX、駐輪場 |
| 冷暖房 | エアコン |
| TV・通信 | CATV、BS端子、CS |
| セキュリティ | 防犯カメラ、オートロック、モニタ付インターホン |
| 庭・バルコニー | 専用庭 |
| その他 | - |
かんたん月額支払い試算
| 物件価格 | お借入額 | 自己資金 | 返済期間 | お借入れ金利 | 想定お支払額(月) | |
|---|---|---|---|---|---|---|
5,499万円 |
5,499万円 |
万円 | % | = |
万円 |
- ※試算結果はあくまでお支払の目安であり、実際の契約内容や金利動向により実際のご返済額と異なる場合がございます。
- ※実際のローン契約を行う場合は金融機関へご確認ください。
- ※上記費用以外に諸経費・修繕積立金・管理費などがかかる場合がございます。
- ※実際のローン契約の際、手数料や印紙税など別途諸経費がかかる場合がございます。
ソルフェスタ赤羽を購入するなら福屋不動産販売|FUKUYAの物件情報ページ
ソルフェスタ赤羽の購入・売却は福屋不動産販売へお任せください。ソルフェスタ赤羽に関するご質問・ご相談や内覧予約はお気軽にお問合せ下さい。ソルフェスタ赤羽は東京都北区赤羽北1丁目の売り出し中の新築・中古マンションです。福屋不動産販売では、ソルフェスタ赤羽以外にも東京都北区の物件を多数取り扱っています。東京都北区でマイホームをお探しの際は福屋不動産販売へお気軽にご相談ください。






























