中古マンション
吉祥寺パインクレスト
- 価格
-
1億200万円
ローンシミュレーション
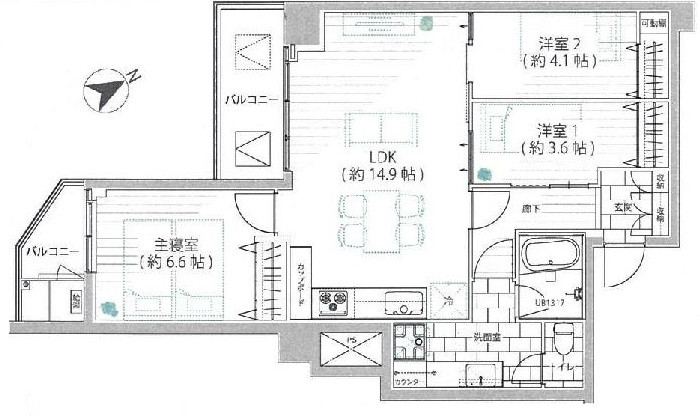
- 間取り
- -
- 所在地
- 東京都武蔵野市吉祥寺南町1丁目
- 交通
- 中央本線 吉祥寺駅 徒歩3分 他
- 築年月
- 1975(昭和50年)年5月(築50年)
- 所在階
- 6階/地上10階
- 専有面積
- 71.41㎡(21.60坪)壁芯
- 費用
-
管理費:19,500 円
修繕積立金:14,500 円
-
ペットOK
-
駅近
-
新築
-
南向き
-
リフォーム
-
駐車場あり
-
オール電化
-
オートロック
-
角部屋
「吉祥寺パインクレスト」のおすすめポイント
◆2026年4月水回り・内装リフォーム完了予定♪
◆南西向きのバルコニーの為陽当り良好♪
◆オートロック付きの為セキュリティも安心♪
![]()
オートロック
![]()
駅近
オートロックの物件です
セキュリティを高めるオートロックの物件です。
駅徒歩5分以内の物件です
最寄りの駅まで徒歩5分以内の物件です。
吉祥寺パインクレストの物件情報
基本情報について
| 価格 |
1億200万円 |
||
|---|---|---|---|
| 所在地 | 東京都武蔵野市吉祥寺南町1丁目 (地図を見る) | ||
| 交通 |
中央本線 吉祥寺駅 徒歩3分 (吉祥寺駅の一覧を見る)
総武・中央緩行線 吉祥寺駅 徒歩3分 (吉祥寺駅の一覧を見る) 京王電鉄井の頭線 吉祥寺駅 徒歩3分 (吉祥寺駅の一覧を見る) |
||
| 築年月 | 1975(昭和50年)年5月(築50年) | ||
| 間取り | - | ||
| 階数/階建 | 6階/地上10階 | ||
| 専有面積
専有面積 分譲マンションなどの区分所有権建物において、区分所有者が単独で所有している部分の専有部分の面積を「専有面積」といいます。 |
71.41㎡(21.60坪)壁芯 | ||
| 用途地域
用途地域 都市計画法に基づく制度で、建築できる建物の制限を定めた地域のことを「用途地域」といいます。 |
近隣商業 | ||
| バルコニー面積 | 8.78㎡ | ||
| 主要採光面
主要採光面 室外の自然光を、窓などを通して室内に採り入れることを「採光」といい、主に採光を得る面の事を「主要採光面」と言います。 |
南西 | その他採光面 | - |
| 現況 | 空 | 引渡可能日 | 相談 |
費用関連について
| 管理費等 | 19,500 円 | 修繕積立金
修繕積立金 マンションの共用部分を維持・修繕するための「大規模修繕」などに必要な資金をまかなうため、積み立てておく金銭を「修繕積立金」といいます。 |
14,500 円 |
|---|---|---|---|
| その他の費用 | - | ||
| 駐車場 | - | ||
詳細情報について
| 借地料 | - | 借地期間
借地期間 借地借家法により定められている、建物を所有する目的で設定された地上権、または建物を所有する目的で設定された土地賃借権を「借地権」といい、その期間を「借地期間」といいます。 |
- |
|---|---|---|---|
| 総戸数 | 105 | 土地権利 | 所有権 |
| 構造
構造 物件の造りを表示しています。 |
SRC | 管理会社 | 株式会社東急コミュニティー |
| 管理員の勤務形態 | 全部委託 | 管理人 | 日勤 |
| 施工会社 | 株式会社間組 | 増改築 | - |
| 間取詳細 | - | 建築確認番号 | - |
| その他の条件 | - | 特記事項 | 日当り良好、管理人日勤 |
| 設備 | 電気、上水道、下水道、都市ガス、浴室乾燥機、温水洗浄便座、浄水器、食器洗浄乾燥機、システムキッチン、収納スペース、室内洗濯機置場、エレベーター、照明器具、ガス給湯器、エアコン、オートロック | ||
| その他の設備 | - | ||
| 備考 | 2026年4月リフォーム完了予定(システムキッチン・ユニットバス・洗濯パン・洗濯水栓・ユニットバス・暖房温水洗浄便座付トイレ新規交換 塩ビタイル(水回り・玄関床)張替 エアコン全室新規取付 ハウスクリーニング) 管理費・修繕積立金・駐車場料金・その他費用に関しては、随時変動する場合があります | ||
| 取引態様 | 仲介 | ||
| 情報更新日 | 2026/04/16 | 次回更新予定日 | 2026/05/16 |
設備・特徴について
| 電気・水道・ガス | 電気、上水道、下水道、都市ガス |
|---|---|
| バス・トイレ | 浴室乾燥機、温水洗浄便座 |
| キッチン | 浄水器、食器洗浄乾燥機、システムキッチン |
| 収納 | 収納スペース |
| 設備・機能 | 室内洗濯機置場、エレベーター、照明器具、ガス給湯器 |
| 冷暖房 | エアコン |
| TV・通信 | - |
| セキュリティ | オートロック |
| 庭・バルコニー | - |
| その他 | - |
かんたん月額支払い試算
| 物件価格 | お借入額 | 自己資金 | 返済期間 | お借入れ金利 | 想定お支払額(月) | |
|---|---|---|---|---|---|---|
1億200万円 |
10,200万円 |
万円 | % | = |
万円 |
- ※試算結果はあくまでお支払の目安であり、実際の契約内容や金利動向により実際のご返済額と異なる場合がございます。
- ※実際のローン契約を行う場合は金融機関へご確認ください。
- ※上記費用以外に諸経費・修繕積立金・管理費などがかかる場合がございます。
- ※実際のローン契約の際、手数料や印紙税など別途諸経費がかかる場合がございます。
吉祥寺パインクレストを購入するなら福屋不動産販売|FUKUYAの物件情報ページ
吉祥寺パインクレストの購入・売却は福屋不動産販売へお任せください。吉祥寺パインクレストに関するご質問・ご相談や内覧予約はお気軽にお問合せ下さい。吉祥寺パインクレストは東京都武蔵野市吉祥寺南町1丁目の売り出し中の新築・中古マンションです。福屋不動産販売では、吉祥寺パインクレスト以外にも東京都武蔵野市の物件を多数取り扱っています。東京都武蔵野市でマイホームをお探しの際は福屋不動産販売へお気軽にご相談ください。
























