新築マンション
パークシティ中野ザ タワー エアーズ
- 価格
-
2億1,300万円
ローンシミュレーション
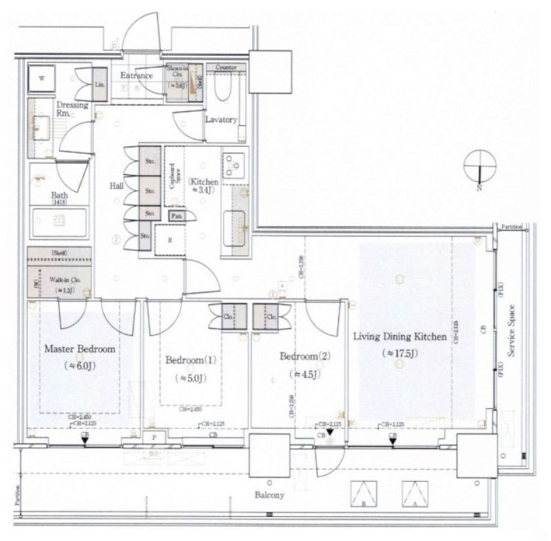
- 間取り
- 3LDK
- 所在地
- 東京都中野区中野4丁目
- 交通
- 中央本線 中野駅 徒歩6分 他
- 築年月
- 2026(令和8年)年3月(築1年未満)
- 所在階
- 9階/地上25階
- 専有面積
- 78.61㎡(23.77坪)壁芯
- 費用
-
管理費:35,840 円
修繕積立金:11,790 円
その他の費用:(月額)インターネット使用料:1,155 円
-
ペットOK
-
駅近
-
新築
-
南向き
-
リフォーム
-
駐車場あり
-
オール電化
-
オートロック
-
角部屋
「パークシティ中野ザ タワー エアーズ」のおすすめポイント
■免震×ZEN‐M Oriented認定
■9階部分の角部屋につき眺望・通風良好
◎JR中央線「中野」駅まで徒歩6分の立地
![]()
オートロック
![]()
新築
![]()
角部屋
オートロックの物件です
セキュリティを高めるオートロックの物件です。
新築物件
新築の物件です。
角部屋の物件です
フロアの端に位置する角部屋の物件です。
パークシティ中野ザ タワー エアーズの物件情報
基本情報について
| 価格 |
2億1,300万円 |
||
|---|---|---|---|
| 所在地 | 東京都中野区中野4丁目 (地図を見る) | ||
| 交通 |
中央本線 中野駅 徒歩6分 (中野駅の一覧を見る)
東京地下鉄東西線 中野駅 徒歩6分 (中野駅の一覧を見る) 総武・中央緩行線 中野駅 徒歩6分 (中野駅の一覧を見る) |
||
| 築年月 | 2026(令和8年)年3月(築1年未満) | ||
| 間取り | 3LDK | ||
| 階数/階建 | 9階/地上25階 | ||
| 専有面積
専有面積 分譲マンションなどの区分所有権建物において、区分所有者が単独で所有している部分の専有部分の面積を「専有面積」といいます。 |
78.61㎡(23.77坪)壁芯 | ||
| 用途地域
用途地域 都市計画法に基づく制度で、建築できる建物の制限を定めた地域のことを「用途地域」といいます。 |
近隣商業 | ||
| バルコニー面積 | 19.30㎡ | ||
| 主要採光面
主要採光面 室外の自然光を、窓などを通して室内に採り入れることを「採光」といい、主に採光を得る面の事を「主要採光面」と言います。 |
北 | その他採光面 | 西 |
| 現況 | 未完成 | 引渡可能日 | 相談 |
費用関連について
| 管理費等 | 35,840 円 | 修繕積立金
修繕積立金 マンションの共用部分を維持・修繕するための「大規模修繕」などに必要な資金をまかなうため、積み立てておく金銭を「修繕積立金」といいます。 |
11,790 円 |
|---|---|---|---|
| その他の費用 | (月額)インターネット使用料:1,155 円 | ||
| 駐車場 | - | ||
詳細情報について
| 借地料 | - | 借地期間
借地期間 借地借家法により定められている、建物を所有する目的で設定された地上権、または建物を所有する目的で設定された土地賃借権を「借地権」といい、その期間を「借地期間」といいます。 |
- |
|---|---|---|---|
| 総戸数 | 545 | 土地権利 | 所有権 |
| 構造
構造 物件の造りを表示しています。 |
SRC | 管理会社 | 三井不動産レジデンシャルサービス株式会社 |
| 管理員の勤務形態 | 全部委託 | 管理人 | 日勤 |
| 施工会社 | 東急建設株式会社 | 増改築 | - |
| 間取詳細 | 3LDK | 建築確認番号 | 第ERI-22018755号 |
| その他の条件 | - | 特記事項 | 外観タイル張り、管理人日勤、振分、角部屋、免震構造 |
| 設備 | 電気、上水道、下水道、都市ガス、システムキッチン、収納スペース、Wクロゼット、室内洗濯機置場、エレベーター、駐輪場、床暖房、光インターネット、オートロック | ||
| その他の設備 | SIC | ||
| 備考 | 2026年8月以降引渡し予定 サービススペース面積:4.77㎡ 床暖房:LD・東側洋室(約6帖)部分 |
||
| 取引態様 | 仲介 | ||
| 情報更新日 | 2026/01/15 | 次回更新予定日 | 2026/02/14 |
設備・特徴について
| 電気・水道・ガス | 電気、上水道、下水道、都市ガス |
|---|---|
| バス・トイレ | - |
| キッチン | システムキッチン |
| 収納 | 収納スペース、Wクロゼット |
| 設備・機能 | 室内洗濯機置場、エレベーター、駐輪場 |
| 冷暖房 | 床暖房 |
| TV・通信 | 光インターネット |
| セキュリティ | オートロック |
| 庭・バルコニー | - |
| その他 | - |
かんたん月額支払い試算
| 物件価格 | お借入額 | 自己資金 | 返済期間 | お借入れ金利 | 想定お支払額(月) | |
|---|---|---|---|---|---|---|
2億1,300万円 |
21,300万円 |
万円 | % | = |
万円 |
- ※試算結果はあくまでお支払の目安であり、実際の契約内容や金利動向により実際のご返済額と異なる場合がございます。
- ※実際のローン契約を行う場合は金融機関へご確認ください。
- ※上記費用以外に諸経費・修繕積立金・管理費などがかかる場合がございます。
- ※実際のローン契約の際、手数料や印紙税など別途諸経費がかかる場合がございます。
パークシティ中野ザ タワー エアーズを購入するなら福屋不動産販売|FUKUYAの物件情報ページ
パークシティ中野ザ タワー エアーズの購入・売却は福屋不動産販売へお任せください。パークシティ中野ザ タワー エアーズに関するご質問・ご相談や内覧予約はお気軽にお問合せ下さい。パークシティ中野ザ タワー エアーズは東京都中野区中野4丁目の売り出し中の新築・中古マンションです。福屋不動産販売では、パークシティ中野ザ タワー エアーズ以外にも東京都中野区の物件を多数取り扱っています。東京都中野区でマイホームをお探しの際は福屋不動産販売へお気軽にご相談ください。































