マンション / 兵庫県

条件変更

種別を選ぶ (複数可)

都道府県を選ぶ

探し方を選ぶ

神戸パークシティB棟の物件詳細ページ|兵庫県神戸市中央区の新築・中古マンション

中古マンション

神戸パークシティB棟

価格
2,699万円
ローンシミュレーション
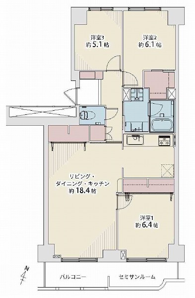
間取り
3LDK
所在地
兵庫県神戸市中央区港島中町6丁目
交通
神戸新交通 みなとじま駅 徒歩5分 他
築年月
1984(昭和59年)年7月(築41年)
所在階
11階/地上14階
専有面積
79.70㎡(24.10坪)壁芯
費用
管理費:9,240 円
修繕積立金:13,940 円
  • ペットOK

  • 駅近

  • 新築

  • 南向き

  • リフォーム

  • 駐車場あり

  • オール電化

  • オートロック

  • 角部屋

「神戸パークシティB棟」のおすすめポイント

◆室内改装渡し(令和7年1月上旬完成予定)システムキッチン・ユニットバス・洗面化粧台・トイレ新調、クロス貼、(LDK・洋室・廊下)フローリング貼、(洗面・トイレ・玄関)フロアタイル貼、ハウスクリーニング◆洋室約6.1帖・洋室約5.1帖エアコン先行配管

イメージ

オートロック

イメージ

ペットOK

イメージ

駅近

イメージ

駐車場あり

オートロックの物件です

セキュリティを高めるオートロックの物件です。

ペットOK(規約による制限あり)の物件です

犬や猫などのペットと一緒に住むことが出来るマンションです。(規約による制限あり)

駅徒歩5分以内の物件です

最寄りの駅まで徒歩5分以内の物件です。

駐車場がある物件です

物件もしくは近隣に駐車場がある物件です。

株式会社福屋不動産販売新長田店

0120-298-711

営業時間
10:00-19:00
定休日
火曜日・水曜日(一部例外有) 、GW、夏期、年末年始
新長田店の店舗ページを見る

店舗ページを見る

物件番号:61141978001

神戸パークシティB棟の物件情報

基本情報について

価格

2,699万円

ローンシミュレーション

所在地 兵庫県神戸市中央区港島中町6丁目 (地図を見る
交通 神戸新交通 みなとじま駅 徒歩5分  (みなとじま駅の一覧を見る
神戸新交通 市民広場駅 徒歩6分  (市民広場駅の一覧を見る
神戸新交通 中埠頭駅 徒歩6分  (中埠頭駅の一覧を見る
築年月 1984(昭和59年)年7月(築41年)
間取り 3LDK
階数/階建 11階/地上14階
専有面積

専有面積

分譲マンションなどの区分所有権建物において、区分所有者が単独で所有している部分の専有部分の面積を「専有面積」といいます。

79.70㎡(24.10坪)壁芯
用途地域

用途地域

都市計画法に基づく制度で、建築できる建物の制限を定めた地域のことを「用途地域」といいます。
第一種低層住居専用地域、第二種低層住居専用地域、第一種中高層住居専用地域、第二種中高層住居専用地域、第一種住居地域、第二種住居地域、準住居地域、田園住居地域、近隣商業地域、商業地域、準工業地域、工業地域、工業専用地域に類別されます。

商業
バルコニー面積 9.74㎡
主要採光面

主要採光面

室外の自然光を、窓などを通して室内に採り入れることを「採光」といい、主に採光を得る面の事を「主要採光面」と言います。

南東 その他採光面 -
現況 引渡可能日 相談

費用関連について

管理費等 9,240 円 修繕積立金

修繕積立金

マンションの共用部分を維持・修繕するための「大規模修繕」などに必要な資金をまかなうため、積み立てておく金銭を「修繕積立金」といいます。

13,940 円
その他の費用 -
駐車場 有 13,500 円

詳細情報について

借地料 - 借地期間

借地期間

借地借家法により定められている、建物を所有する目的で設定された地上権、または建物を所有する目的で設定された土地賃借権を「借地権」といい、その期間を「借地期間」といいます。

-
総戸数 168 土地権利 所有権
構造

構造

物件の造りを表示しています。

SRC 管理会社 三井不動産レジデンシャルサービス関西(株)
管理員の勤務形態 全部委託 管理人 日勤
施工会社 三井建設(株) 増改築 -
間取詳細 3LDK 建築確認番号 -
その他の条件 - 特記事項 ペット相談
設備 電気、上水道、下水道、都市ガス、浴室乾燥機、温水洗浄便座、浄水器、食器洗浄乾燥機、システムキッチン、収納スペース、Wクロゼット、給湯、エレベーター、洗濯機置場、シャワー付洗面化粧台、照明器具、オートロック、モニタ付インターホン
その他の設備 -
備考 ペット飼育可(規約による制限有り)。駐車場の空き状況は令和7年11月17日時点で確認した情報です。住民活動協力金(非居住者の場合):(月額)3,000円。
取引態様 仲介
情報更新日 2025/12/22 次回更新予定日 2026/01/21

設備・特徴について

電気・水道・ガス 電気、上水道、下水道、都市ガス
バス・トイレ 浴室乾燥機、温水洗浄便座
キッチン 浄水器、食器洗浄乾燥機、システムキッチン
収納 収納スペース、Wクロゼット
設備・機能 給湯、エレベーター、洗濯機置場、シャワー付洗面化粧台、照明器具
冷暖房 -
TV・通信 -
セキュリティ オートロック、モニタ付インターホン
庭・バルコニー -
その他 -

かんたん月額支払い試算

物件価格 お借入額 自己資金 返済期間 お借入れ金利 想定お支払額(月)

2,699万円

2,699万円

万円 %

=

万円

  • ※試算結果はあくまでお支払の目安であり、実際の契約内容や金利動向により実際のご返済額と異なる場合がございます。
  • ※実際のローン契約を行う場合は金融機関へご確認ください。
  • ※上記費用以外に諸経費・修繕積立金・管理費などがかかる場合がございます。
  • ※実際のローン契約の際、手数料や印紙税など別途諸経費がかかる場合がございます。

株式会社福屋不動産販売新長田店

0120-298-711

営業時間
10:00-19:00
定休日
火曜日・水曜日(一部例外有) 、GW、夏期、年末年始
新長田店の店舗ページを見る

店舗ページを見る

物件番号:61141978001

周辺環境について画像をクリックすると拡大表示されます

兵庫県神戸市中央区港島中町6丁目

GoogleMapで見る

神戸新交通 みなとじま駅 徒歩5分 
神戸新交通 市民広場駅 徒歩6分 
神戸新交通 中埠頭駅 徒歩6分 

  • イメージ

    神戸市立義務教育学校港島学園中学校(230m)

  • イメージ

    神戸市立義務教育学校港島学園小学校(230m)

同一マンションの別の物件神戸パークシティB棟で売出中の別物件

  • 閲覧済
  • 閲覧中
価格
2,699万円
階数
11階
間取り
3LDK
専有面積
79.70㎡
採光面
南東
  • 閲覧済
  • 閲覧中
価格
2,699万円
階数
11階
間取り
3LDK
専有面積
79.70㎡
採光面
南東

神戸パークシティB棟を購入するなら福屋不動産販売|FUKUYAの物件情報ページ

神戸パークシティB棟の購入・売却は福屋不動産販売へお任せください。神戸パークシティB棟に関するご質問・ご相談や内覧予約はお気軽にお問合せ下さい。神戸パークシティB棟は兵庫県神戸市中央区港島中町6丁目の売り出し中の新築・中古マンションです。福屋不動産販売では、神戸パークシティB棟以外にも兵庫県神戸市中央区の物件を多数取り扱っています。兵庫県神戸市中央区でマイホームをお探しの際は福屋不動産販売へお気軽にご相談ください。

スマートフォンで物件情報を見たい方は、このQRコードを読み取ってください

閉じる

FUKUYA ローンシミュレーション

物件価格
万円
自己資金
万円
お借り入れ金額 (物件価格-自己資金)
万円
税込み年収
万円
ボーナス返済総額
万円

※お借り入れ金額の50%未満が目安です

お借り入れ期間
お借り入れ金利

※一般的な銀行での変動金利となります

試算結果

月々のお支払額(年10回)
ボーナス月のお支払額(年2回)
年間お支払総額
お支払総額
返済比率

※一般的な目安 35%以内

その他、諸経費、修繕積立金、管理費等がかかる場合がございます。
詳細については掲載店舗までご相談下さい。

この物件の担当店舗へお問い合わせ

閉じる

まとめて資料請求する店舗を選択してください

取扱店舗1店舗

お気に入りに追加しました

OK

お気に入りについてご確認

お気に入りは30件までとなっております。

古いデータが削除されますがよろしいですか。

OK

キャンセル

ページの先頭へ