マンション / 大阪府

条件変更

種別を選ぶ (複数可)

都道府県を選ぶ

探し方を選ぶ

阿倍野シティハイツの物件詳細ページ|大阪府大阪市阿倍野区の新築・中古マンション

中古マンション

阿倍野シティハイツ

価格
3,980万円
ローンシミュレーション
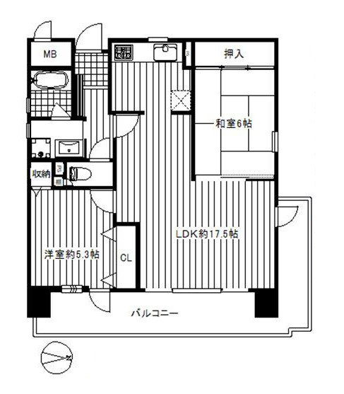
間取り
2LDK
所在地
大阪府大阪市阿倍野区天王寺町北2丁目
交通
大阪環状線 寺田町駅 徒歩5分 他
築年月
1990(平成2年)年8月(築35年)
所在階
3階/地上8階
専有面積
64.33㎡(19.45坪)壁芯
費用
管理費:10,810 円
修繕積立金:12,220 円
  • ペットOK

  • 駅近

  • 新築

  • 南向き

  • リフォーム

  • 駐車場あり

  • オール電化

  • オートロック

  • 角部屋

「阿倍野シティハイツ」のおすすめポイント

■令和8年4月フルリノベーション済!■東北角部屋につき日当たり・通風良好♪■大阪環状線「寺田町」駅徒歩5分の立地♪■食洗器付のシステムキッチン♪

イメージ

リフォーム

イメージ

オートロック

イメージ

駅近

イメージ

角部屋

リフォーム済みの物件です

中古物件のリフォーム済み物件です。

オートロックの物件です

セキュリティを高めるオートロックの物件です。

駅徒歩5分以内の物件です

最寄りの駅まで徒歩5分以内の物件です。

角部屋の物件です

フロアの端に位置する角部屋の物件です。

阿倍野シティハイツのパノラマ写真

自動再生

停止

拡大

縮小

フル画面

株式会社福屋不動産販売東住吉店

0120-34-2981

営業時間
10:00-19:00
定休日
火曜日・水曜日(一部例外有) 、GW、夏期、年末年始
東住吉店の店舗ページを見る

店舗ページを見る

物件番号:61072231000

阿倍野シティハイツの物件情報

基本情報について

価格

3,980万円

ローンシミュレーション

所在地 大阪府大阪市阿倍野区天王寺町北2丁目 (地図を見る
交通 大阪環状線 寺田町駅 徒歩5分  (寺田町駅の一覧を見る
大阪市御堂筋線 天王寺駅 徒歩10分  (天王寺駅の一覧を見る
近鉄南大阪線 河堀口駅 徒歩5分  (河堀口駅の一覧を見る
築年月 1990(平成2年)年8月(築35年)
間取り 2LDK
階数/階建 3階/地上8階
専有面積

専有面積

分譲マンションなどの区分所有権建物において、区分所有者が単独で所有している部分の専有部分の面積を「専有面積」といいます。

64.33㎡(19.45坪)壁芯
用途地域

用途地域

都市計画法に基づく制度で、建築できる建物の制限を定めた地域のことを「用途地域」といいます。
第一種低層住居専用地域、第二種低層住居専用地域、第一種中高層住居専用地域、第二種中高層住居専用地域、第一種住居地域、第二種住居地域、準住居地域、田園住居地域、近隣商業地域、商業地域、準工業地域、工業地域、工業専用地域に類別されます。

1種住居
バルコニー面積 15.22㎡
主要採光面

主要採光面

室外の自然光を、窓などを通して室内に採り入れることを「採光」といい、主に採光を得る面の事を「主要採光面」と言います。

その他採光面 -
現況 引渡可能日 即時

費用関連について

管理費等 10,810 円 修繕積立金

修繕積立金

マンションの共用部分を維持・修繕するための「大規模修繕」などに必要な資金をまかなうため、積み立てておく金銭を「修繕積立金」といいます。

12,220 円
その他の費用 -
駐車場 空無

詳細情報について

借地料 - 借地期間

借地期間

借地借家法により定められている、建物を所有する目的で設定された地上権、または建物を所有する目的で設定された土地賃借権を「借地権」といい、その期間を「借地期間」といいます。

-
総戸数 22 土地権利 所有権
構造

構造

物件の造りを表示しています。

SRC 管理会社 互光建物管理(株)
管理員の勤務形態 全部委託 管理人 日勤
施工会社 - 増改築 -
間取詳細 2LDK 建築確認番号 -
その他の条件 - 特記事項 管理人日勤、角部屋
設備 電気、上水道、下水道、都市ガス、雑排水、追焚機能、浴室乾燥機、温水洗浄便座、食器洗浄乾燥機、システムキッチン、エレベーター、宅配BOX、シャワー付洗面化粧台、オートロック、モニタ付インターホン、2面バルコニー
その他の設備 -
備考 令和8年4月フルリノベーション内容:システムキッチン新調(食洗器付)、システムバス新調、温水洗浄便座付トイレ新調、洗面化粧台900新調、フローリングLL45新貼、全建具新調、全クロス張替、ダウンライト新調、全電気設備新調、CF貼替、畳表替、襖張替、シューズボックス新調、全カーテンレール新調、洗濯パン新調、ハウスクリーニング、塗装、補修
取引態様 仲介
情報更新日 2026/04/11 次回更新予定日 2026/05/11

設備・特徴について

電気・水道・ガス 電気、上水道、下水道、都市ガス、雑排水
バス・トイレ 追焚機能、浴室乾燥機、温水洗浄便座
キッチン 食器洗浄乾燥機、システムキッチン
収納 -
設備・機能 エレベーター、宅配BOX、シャワー付洗面化粧台
冷暖房 -
TV・通信 -
セキュリティ オートロック、モニタ付インターホン
庭・バルコニー 2面バルコニー
その他 -

かんたん月額支払い試算

物件価格 お借入額 自己資金 返済期間 お借入れ金利 想定お支払額(月)

3,980万円

3,980万円

万円 %

=

万円

  • ※試算結果はあくまでお支払の目安であり、実際の契約内容や金利動向により実際のご返済額と異なる場合がございます。
  • ※実際のローン契約を行う場合は金融機関へご確認ください。
  • ※上記費用以外に諸経費・修繕積立金・管理費などがかかる場合がございます。
  • ※実際のローン契約の際、手数料や印紙税など別途諸経費がかかる場合がございます。

株式会社福屋不動産販売東住吉店

0120-34-2981

営業時間
10:00-19:00
定休日
火曜日・水曜日(一部例外有) 、GW、夏期、年末年始
東住吉店の店舗ページを見る

店舗ページを見る

物件番号:61072231000

周辺環境について画像をクリックすると拡大表示されます

大阪府大阪市阿倍野区天王寺町北2丁目

GoogleMapで見る

大阪環状線 寺田町駅 徒歩5分 
大阪市御堂筋線 天王寺駅 徒歩10分 
近鉄南大阪線 河堀口駅 徒歩5分 

  • イメージ

    大阪市立文の里中学校(600m)

  • イメージ

    大阪市立高松小学校(390m)

同一マンションの別の物件阿倍野シティハイツで売出中の別物件

  • 閲覧済
  • 閲覧中
価格
3,980万円
階数
3階
間取り
2LDK
専有面積
64.33㎡
採光面
  • 閲覧済
  • 閲覧中
価格
4,280万円
階数
4階
間取り
2SLDK
専有面積
84.77㎡
採光面

阿倍野シティハイツを購入するなら福屋不動産販売|FUKUYAの物件情報ページ

阿倍野シティハイツの購入・売却は福屋不動産販売へお任せください。阿倍野シティハイツに関するご質問・ご相談や内覧予約はお気軽にお問合せ下さい。阿倍野シティハイツは大阪府大阪市阿倍野区天王寺町北2丁目の売り出し中の新築・中古マンションです。福屋不動産販売では、阿倍野シティハイツ以外にも大阪府大阪市阿倍野区の物件を多数取り扱っています。大阪府大阪市阿倍野区でマイホームをお探しの際は福屋不動産販売へお気軽にご相談ください。

スマートフォンで物件情報を見たい方は、このQRコードを読み取ってください

閉じる

FUKUYA ローンシミュレーション

物件価格
万円
自己資金
万円
お借り入れ金額 (物件価格-自己資金)
万円
税込み年収
万円
ボーナス返済総額
万円

※お借り入れ金額の50%未満が目安です

お借り入れ期間
お借り入れ金利

※一般的な銀行での変動金利となります

試算結果

月々のお支払額(年10回)
ボーナス月のお支払額(年2回)
年間お支払総額
お支払総額
返済比率

※一般的な目安 35%以内

その他、諸経費、修繕積立金、管理費等がかかる場合がございます。
詳細については掲載店舗までご相談下さい。

この物件の担当店舗へお問い合わせ

閉じる

まとめて資料請求する店舗を選択してください

取扱店舗1店舗

お気に入りに追加しました

OK

お気に入りについてご確認

お気に入りは30件までとなっております。

古いデータが削除されますがよろしいですか。

OK

キャンセル

ページの先頭へ