福屋不動産販売 岡本店
兵庫県 / JR摂津本山駅徒歩3分
キッズスペースあり
駐車場あり
中古マンション
神戸パークシティB棟
- 価格
-
2,699万円
ローンシミュレーション
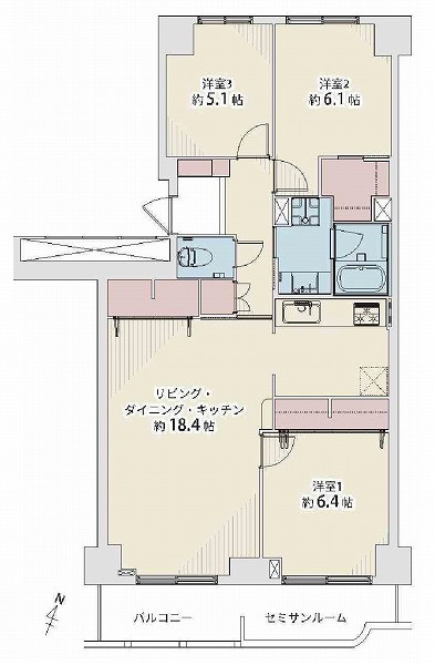
- 間取り
- 3LDK
- 所在地
- 兵庫県神戸市中央区港島中町6丁目
- 交通
- 神戸新交通 みなとじま駅 徒歩5分 他
- 築年月
- 1984(昭和59年)年7月(築41年)
- 所在階
- 11階/地上14階
- 専有面積
- 79.70㎡(24.10坪)壁芯
- 費用
-
管理費:9,240 円
修繕積立金:13,940 円
-
ペットOK
-
駅近
-
新築
-
南向き
-
リフォーム
-
駐車場あり
-
オール電化
-
オートロック
-
角部屋
「神戸パークシティB棟」のおすすめポイント
![]()
オートロック
![]()
ペットOK
![]()
駅近
![]()
駐車場あり
オートロックの物件です
セキュリティを高めるオートロックの物件です。
ペットOK(規約による制限あり)の物件です
犬や猫などのペットと一緒に住むことが出来るマンションです。(規約による制限あり)
駅徒歩5分以内の物件です
最寄りの駅まで徒歩5分以内の物件です。
駐車場がある物件です
物件もしくは近隣に駐車場がある物件です。
神戸パークシティB棟の物件情報
基本情報について
| 価格 |
2,699万円 |
||
|---|---|---|---|
| 所在地 | 兵庫県神戸市中央区港島中町6丁目 (地図を見る) | ||
| 交通 |
神戸新交通 みなとじま駅 徒歩5分 (みなとじま駅の一覧を見る)
神戸新交通 市民広場駅 徒歩6分 (市民広場駅の一覧を見る) 神戸新交通 中埠頭駅 徒歩6分 (中埠頭駅の一覧を見る) |
||
| 築年月 | 1984(昭和59年)年7月(築41年) | ||
| 間取り | 3LDK | ||
| 階数/階建 | 11階/地上14階 | ||
| 専有面積
専有面積 分譲マンションなどの区分所有権建物において、区分所有者が単独で所有している部分の専有部分の面積を「専有面積」といいます。 |
79.70㎡(24.10坪)壁芯 | ||
| 用途地域
用途地域 都市計画法に基づく制度で、建築できる建物の制限を定めた地域のことを「用途地域」といいます。 |
商業 | ||
| バルコニー面積 | 9.74㎡ | ||
| 主要採光面
主要採光面 室外の自然光を、窓などを通して室内に採り入れることを「採光」といい、主に採光を得る面の事を「主要採光面」と言います。 |
南東 | その他採光面 | - |
| 現況 | 空 | 引渡可能日 | 相談 |
費用関連について
| 管理費等 | 9,240 円 | 修繕積立金
修繕積立金 マンションの共用部分を維持・修繕するための「大規模修繕」などに必要な資金をまかなうため、積み立てておく金銭を「修繕積立金」といいます。 |
13,940 円 |
|---|---|---|---|
| その他の費用 | - | ||
| 駐車場 | 有 13,500 円 | ||
詳細情報について
| 借地料 | - | 借地期間
借地期間 借地借家法により定められている、建物を所有する目的で設定された地上権、または建物を所有する目的で設定された土地賃借権を「借地権」といい、その期間を「借地期間」といいます。 |
- |
|---|---|---|---|
| 総戸数 | 168 | 土地権利 | 所有権 |
| 構造
構造 物件の造りを表示しています。 |
SRC | 管理会社 | 三井不動産レジデンシャルサービス関西(株) |
| 管理員の勤務形態 | 全部委託 | 管理人 | 日勤 |
| 施工会社 | 三井建設(株) | 増改築 | - |
| 間取詳細 | 3LDK | 建築確認番号 | - |
| その他の条件 | - | 特記事項 | ペット相談 |
| 設備 | 電気、上水道、下水道、都市ガス、浴室乾燥機、温水洗浄便座、浄水器、食器洗浄乾燥機、システムキッチン、収納スペース、Wクロゼット、給湯、エレベーター、洗濯機置場、シャワー付洗面化粧台、照明器具、オートロック、モニタ付インターホン | ||
| その他の設備 | - | ||
| 備考 | ペット飼育可(規約による制限有り)。駐車場の空き状況は令和7年11月17日時点で確認した情報です。住民活動協力金(非居住者の場合):(月額)3,000円。 | ||
| 取引態様 | 仲介 | ||
| 情報更新日 | 2025/12/22 | 次回更新予定日 | 2026/01/21 |
設備・特徴について
| 電気・水道・ガス | 電気、上水道、下水道、都市ガス |
|---|---|
| バス・トイレ | 浴室乾燥機、温水洗浄便座 |
| キッチン | 浄水器、食器洗浄乾燥機、システムキッチン |
| 収納 | 収納スペース、Wクロゼット |
| 設備・機能 | 給湯、エレベーター、洗濯機置場、シャワー付洗面化粧台、照明器具 |
| 冷暖房 | - |
| TV・通信 | - |
| セキュリティ | オートロック、モニタ付インターホン |
| 庭・バルコニー | - |
| その他 | - |
かんたん月額支払い試算
| 物件価格 | お借入額 | 自己資金 | 返済期間 | お借入れ金利 | 想定お支払額(月) | |
|---|---|---|---|---|---|---|
2,699万円 |
2,699万円 |
万円 | % | = |
万円 |
- ※試算結果はあくまでお支払の目安であり、実際の契約内容や金利動向により実際のご返済額と異なる場合がございます。
- ※実際のローン契約を行う場合は金融機関へご確認ください。
- ※上記費用以外に諸経費・修繕積立金・管理費などがかかる場合がございます。
- ※実際のローン契約の際、手数料や印紙税など別途諸経費がかかる場合がございます。
周辺環境について画像をクリックすると拡大表示されます
岡本店のおすすめ物件特集
スマートフォンで
店舗ページを見る
福屋不動産販売 岡本店
兵庫県 / JR摂津本山駅徒歩3分
キッズスペースあり
駐車場あり















