福屋不動産販売 宝塚店
兵庫県 / 阪急宝塚線宝塚駅阪急今津線宝塚南口駅
キッズスペースあり
駐車場あり
中古マンション
シティライフ夙川
- 価格
-
1,350万円
ローンシミュレーション
- 間取り
- 1K
- 所在地
- 兵庫県西宮市西田町
- 交通
- 阪神電鉄本線 西宮駅 徒歩11分 他
- 築年月
- 2008(平成20年)年3月(築18年)
- 所在階
- 9階/地上10階
- 専有面積
- 25.00㎡( 7.56坪)壁芯
- 費用
-
管理費:7,100 円
修繕積立金:5,400 円
-
ペットOK
-
駅近
-
新築
-
南向き
-
リフォーム
-
駐車場あり
-
オール電化
-
オートロック
-
角部屋
「シティライフ夙川」のおすすめポイント
![]()
南向き
![]()
ペットOK
![]()
オール電化
南向きの物件です
日当たりが良いとされる南向きの物件です。
ペットOK(規約による制限あり)の物件です
犬や猫などのペットと一緒に住むことが出来るマンションです。(規約による制限あり)
オール電化の物件です
キッチンや空調などがオール電化の物件です。
シティライフ夙川の物件情報
利回りとは各不動産の1年間の予定賃料収入の当該不動産取得対価に対する割合です。また公租公課その他当該物件を維持するために必要な諸費用の控除前のものです。予定賃料収入は確実に得られることを保証されるものではありません。
基本情報について
| 価格 |
1,350万円 |
||
|---|---|---|---|
| 所在地 | 兵庫県西宮市西田町 | ||
| 交通 |
阪神電鉄本線 西宮駅 徒歩11分 (西宮駅の一覧を見る)
阪急電鉄神戸線 夙川駅 徒歩13分 (夙川駅の一覧を見る) 東海道本線 さくら夙川駅 徒歩14分 (さくら夙川駅の一覧を見る) |
||
| 築年月 | 2008(平成20年)年3月(築18年) | ||
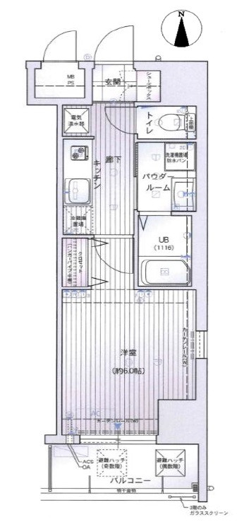
| 間取り | 1K | ||
| 階数/階建 | 9階/地上10階 | ||
| 専有面積
専有面積 分譲マンションなどの区分所有権建物において、区分所有者が単独で所有している部分の専有部分の面積を「専有面積」といいます。 |
25.00㎡( 7.56坪)壁芯 | ||
| 用途地域
用途地域 都市計画法に基づく制度で、建築できる建物の制限を定めた地域のことを「用途地域」といいます。 |
近隣商業 | ||
| バルコニー面積 | 4.08㎡ | ||
| 主要採光面
主要採光面 室外の自然光を、窓などを通して室内に採り入れることを「採光」といい、主に採光を得る面の事を「主要採光面」と言います。 |
南 | その他採光面 | - |
| 現況 | 賃貸中 | 引渡可能日 | 相談 |
費用関連について
| 管理費等 | 7,100 円 | 修繕積立金
修繕積立金 マンションの共用部分を維持・修繕するための「大規模修繕」などに必要な資金をまかなうため、積み立てておく金銭を「修繕積立金」といいます。 |
5,400 円 |
|---|---|---|---|
| その他の費用 | - | ||
| 駐車場 | 空無 | ||
詳細情報について
| 借地料 | - | 借地期間
借地期間 借地借家法により定められている、建物を所有する目的で設定された地上権、または建物を所有する目的で設定された土地賃借権を「借地権」といい、その期間を「借地期間」といいます。 |
- |
|---|---|---|---|
| 総戸数 | 37 | 土地権利 | 所有権 |
| 構造
構造 物件の造りを表示しています。 |
RC | 管理会社 | 株式会社合人社計画研究所 |
| 管理員の勤務形態 | 全部委託 | 管理人 | 巡回 |
| 施工会社 | 平和奥田株式会社 | 増改築 | - |
| 間取詳細 | 1K | 建築確認番号 | - |
| その他の条件 | オーナーチェンジ | 特記事項 | ペット相談 |
| 設備 | 電気、上水道、下水道、収納スペース、室内洗濯機置場、エレベーター、宅配BOX、オール電化 | ||
| その他の設備 | - | ||
| 備考 | - | ||
| 取引態様 | 仲介 | ||
| 情報更新日 | 2026/03/12 | 次回更新予定日 | 2026/04/11 |
設備・特徴について
| 電気・水道・ガス | 電気、上水道、下水道 |
|---|---|
| バス・トイレ | - |
| キッチン | - |
| 収納 | 収納スペース |
| 設備・機能 | 室内洗濯機置場、エレベーター、宅配BOX、オール電化 |
| 冷暖房 | - |
| TV・通信 | - |
| セキュリティ | - |
| 庭・バルコニー | - |
| その他 | - |
かんたん月額支払い試算
| 物件価格 | お借入額 | 自己資金 | 返済期間 | お借入れ金利 | 想定お支払額(月) | |
|---|---|---|---|---|---|---|
1,350万円 |
1,350万円 |
万円 | % | = |
万円 |
- ※試算結果はあくまでお支払の目安であり、実際の契約内容や金利動向により実際のご返済額と異なる場合がございます。
- ※実際のローン契約を行う場合は金融機関へご確認ください。
- ※上記費用以外に諸経費・修繕積立金・管理費などがかかる場合がございます。
- ※実際のローン契約の際、手数料や印紙税など別途諸経費がかかる場合がございます。
宝塚店のおすすめ物件特集
スマートフォンで
店舗ページを見る
福屋不動産販売 宝塚店
兵庫県 / 阪急宝塚線宝塚駅阪急今津線宝塚南口駅
キッズスペースあり
駐車場あり


















