福屋不動産販売 宝塚店
兵庫県 / 阪急宝塚線宝塚駅阪急今津線宝塚南口駅
キッズスペースあり
駐車場あり
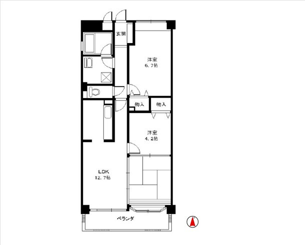
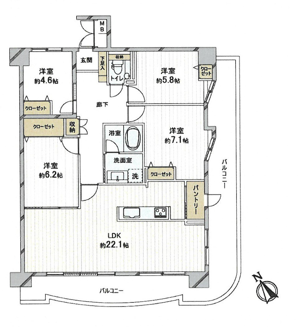
阪急電鉄今津線 門戸厄神のマンション一覧
駅
- 阪急電鉄今津線 門戸厄神
条件
指定なし
14
件 中 1 ~ 14件を表示
)
表示件数
並び替え
14
件 中 1 ~ 14件を表示
宝塚店のおすすめ物件特集
スマートフォンで
店舗ページを見る
福屋不動産販売 宝塚店
兵庫県 / 阪急宝塚線宝塚駅阪急今津線宝塚南口駅
キッズスペースあり
駐車場あり
宝塚市、西宮市、三田市、伊丹市、川西市での不動産購入・不動産売却/査定は株式会社福屋不動産販売 宝塚店へお任せください。
東京都・大阪府・兵庫県・京都府・奈良県・滋賀県・福岡県に90店舗以上のネットワークがあるFUKUYAグループ。
兵庫県の新築・中古マンション・新築一戸建て・中古一戸建て・土地/売り地・投資・収益用物件・店舗・事業用物件
の一覧はこちら。宝塚市の物件をお探しのお客様にぴったりの物件をご紹介します!








