福屋不動産販売 塚口店
兵庫県 / 阪急電鉄 阪急塚口駅徒歩3分
キッズスペースあり
駐車場あり
店舗付住宅
杭瀬南新町2丁目店舗付き住宅
- 価格
-
1,980万円
ローンシミュレーション
- 現状利回り
- -
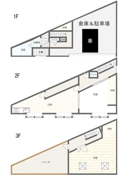
- 間取り
- 2LDK
- 所在地
- 兵庫県尼崎市杭瀬南新町2丁目
- 交通
- 阪神電鉄本線 杭瀬駅 徒歩3分 他
- 築年月
- 1988(昭和63年)年9月(築37年)
- 土地面積
- 79.53㎡(24.05坪)公簿
- 建物面積
- 114.57㎡(34.65坪)-
-
ペットOK
-
駅近
-
新築
-
南向き
-
リフォーム
-
駐車場あり
-
オール電化
-
オートロック
-
角部屋
「杭瀬南新町2丁目店舗付き住宅」のおすすめポイント
![]()
駅近
![]()
駐車場あり
駅徒歩5分以内の物件です
最寄りの駅まで徒歩5分以内の物件です。
駐車場がある物件です
物件もしくは近隣に駐車場がある物件です。
杭瀬南新町2丁目店舗付き住宅の物件情報
利回りとは各不動産の1年間の予定賃料収入の当該不動産取得対価に対する割合です。また公租公課その他当該物件を維持するために必要な諸費用の控除前のものです。予定賃料収入は確実に得られることを保証されるものではありません。
基本情報について
| 価格 |
1,980万円 |
||
|---|---|---|---|
| 所在地 | 兵庫県尼崎市杭瀬南新町2丁目 (地図を見る) | ||
| 交通 |
阪神電鉄本線 杭瀬駅 徒歩3分 (杭瀬駅の一覧を見る)
阪神電鉄本線 大物駅 徒歩15分 (大物駅の一覧を見る) 阪神電鉄本線 千船駅 徒歩18分 (千船駅の一覧を見る) |
||
| 築年月 | 1988(昭和63年)年9月(築37年) | ||
| 間取り | 2LDK | ||
| 階数/階建 | 地上3階 | ||
| 専有面積
専有面積 分譲マンションなどの区分所有権建物において、区分所有者が単独で所有している部分の専有部分の面積を「専有面積」といいます。 |
114.57㎡(34.65坪)- | ||
| 土地面積 | 79.53㎡(24.05坪)公簿 | ||
| 用途地域
用途地域 都市計画法に基づく制度で、建築できる建物の制限を定めた地域のことを「用途地域」といいます。 |
2種住居 | ||
| バルコニー面積 | - | ||
| 主要採光面
主要採光面 室外の自然光を、窓などを通して室内に採り入れることを「採光」といい、主に採光を得る面の事を「主要採光面」と言います。 |
- | その他採光面 | - |
| 現況 | 賃貸中 | 引渡可能日 | 相談 |
費用関連について
| 管理費等 | - | 修繕積立金
修繕積立金 マンションの共用部分を維持・修繕するための「大規模修繕」などに必要な資金をまかなうため、積み立てておく金銭を「修繕積立金」といいます。 |
- |
|---|---|---|---|
| その他の費用 | - | ||
| 駐車場 | 有 0 円 | ||
詳細情報について
| 地目
地目 登記簿に記載されている土地の用途・種類のことを「地目」といい、田、畑、宅地、塩田、鉱泉地、池沼、山林、牧場、原野、墓地、境内地、運河用地、水道用地、用悪水路、ため池、堤、井溝、保安林、公衆用道路、公園、雑種地、学校用地、鉄道用地の23種類に区分されています。 |
宅地 | 地勢
地勢 土地の起伏や海面との位置情報どの土地の概況のことを言います。 |
- |
|---|---|---|---|
| 都市計画
都市計画 適正な土地利用、都市施設の整備、市街地開発事業に関する計画で、都市の健全な発展と秩序ある整備を図るため都市計画法の規定により定められたものを「都市計画」といいます。 |
市街化区域 | 国土法届出 | 不要 |
| 接道状況
接道状況 敷地に面した道路の状況。 |
一方( 北側 幅員約2.7mの公道に約14.2m接道 ) | ||
| 借地料 | - | 借地期間
借地期間 借地借家法により定められている、建物を所有する目的で設定された地上権、または建物を所有する目的で設定された土地賃借権を「借地権」といい、その期間を「借地期間」といいます。 |
- |
| その他制限 | - | (建物)構造
構造 物件の造りを表示しています。 |
鉄骨 |
| 総戸数 | - | 管理員の勤務形態 | - |
| 管理会社 | - | 管理組合 | - |
| 管理人 | - | 土地権利 | 所有権 |
| 施工会社 | - | 増改築 | - |
| 間取詳細 | 2LDK +倉庫 | 建築確認番号 | - |
| その他の条件 | オーナーチェンジ | 特記事項 | - |
| 設備 | 電気、公営水道、汚水-本下水、雑排水-本下水、トイレ | ||
| その他の設備 | - | ||
| 備考 | ※1階建物面積に車庫部分面積含む/売主の契約不適合責任免責 | ||
| 取引態様 | 仲介 | ||
| 情報更新日 | 2025/12/22 | 次回更新予定日 | 2026/01/21 |
設備・特徴について
| 電気・水道・ガス | 電気、公営水道、汚水-本下水、雑排水-本下水 |
|---|---|
| バス・トイレ | トイレ |
| キッチン | - |
| 収納 | - |
| 設備・機能 | - |
| 冷暖房 | - |
| TV・通信 | - |
| セキュリティ | - |
| 庭・バルコニー | - |
| その他 | - |
かんたん月額支払い試算
| 物件価格 | お借入額 | 自己資金 | 返済期間 | お借入れ金利 | 想定お支払額(月) | |
|---|---|---|---|---|---|---|
1,980万円 |
1,980万円 |
万円 | % | = |
万円 |
- ※試算結果はあくまでお支払の目安であり、実際の契約内容や金利動向により実際のご返済額と異なる場合がございます。
- ※実際のローン契約を行う場合は金融機関へご確認ください。
- ※上記費用以外に諸経費・修繕積立金・管理費などがかかる場合がございます。
- ※実際のローン契約の際、手数料や印紙税など別途諸経費がかかる場合がございます。
スマートフォンで
店舗ページを見る
福屋不動産販売 塚口店
兵庫県 / 阪急電鉄 阪急塚口駅徒歩3分
キッズスペースあり
駐車場あり














