福屋不動産販売 深江橋店
大阪府 / Osaka Metro中央線 深江橋駅徒歩1分
キッズスペースあり
駐車場あり
中古マンション
アービング荒本駅前通りANNEX
- 価格
-
3,410万円
ローンシミュレーション
- 間取り
- 1SLDK
- 所在地
- 大阪府東大阪市荒本新町
- 交通
- 近鉄けいはんな線 荒本駅 徒歩3分
- 築年月
- 2023(令和5年)年2月(築2年)
- 所在階
- 7階/地上13階
- 専有面積
- 67.41㎡(20.39坪)壁芯
- 費用
-
管理費:14,160 円
修繕積立金:4,720 円
-
ペットOK
-
駅近
-
新築
-
南向き
-
リフォーム
-
駐車場あり
-
オール電化
-
オートロック
-
角部屋
「アービング荒本駅前通りANNEX」のおすすめポイント
★近鉄けいはんな線「荒本」駅徒歩3分の立地
★ペットと一緒に暮らせるマンション♪
★オートロックでセキュリティ安心
★令和5年2月建築
![]()
オートロック
![]()
ペットOK
![]()
駅近
![]()
角部屋
オートロックの物件です
セキュリティを高めるオートロックの物件です。
ペットOK(規約による制限あり)の物件です
犬や猫などのペットと一緒に住むことが出来るマンションです。(規約による制限あり)
駅徒歩5分以内の物件です
最寄りの駅まで徒歩5分以内の物件です。
角部屋の物件です
フロアの端に位置する角部屋の物件です。
アービング荒本駅前通りANNEXの物件情報
基本情報について
| 価格 |
3,410万円 |
||
|---|---|---|---|
| 所在地 | 大阪府東大阪市荒本新町 (地図を見る) | ||
| 交通 | 近鉄けいはんな線 荒本駅 徒歩3分 (荒本駅の一覧を見る) | ||
| 築年月 | 2023(令和5年)年2月(築2年) | ||
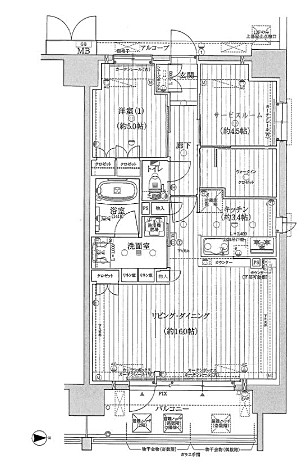
| 間取り | 1SLDK | ||
| 階数/階建 | 7階/地上13階 | ||
| 専有面積
専有面積 分譲マンションなどの区分所有権建物において、区分所有者が単独で所有している部分の専有部分の面積を「専有面積」といいます。 |
67.41㎡(20.39坪)壁芯 | ||
| 用途地域
用途地域 都市計画法に基づく制度で、建築できる建物の制限を定めた地域のことを「用途地域」といいます。 |
商業 | ||
| バルコニー面積 | 9.75㎡ | ||
| 主要採光面
主要採光面 室外の自然光を、窓などを通して室内に採り入れることを「採光」といい、主に採光を得る面の事を「主要採光面」と言います。 |
東 | その他採光面 | - |
| 現況 | 空 | 引渡可能日 | 相談 |
費用関連について
| 管理費等 | 14,160 円 | 修繕積立金
修繕積立金 マンションの共用部分を維持・修繕するための「大規模修繕」などに必要な資金をまかなうため、積み立てておく金銭を「修繕積立金」といいます。 |
4,720 円 |
|---|---|---|---|
| その他の費用 | - | ||
| 駐車場 | 空無 | ||
詳細情報について
| 借地料 | - | 借地期間
借地期間 借地借家法により定められている、建物を所有する目的で設定された地上権、または建物を所有する目的で設定された土地賃借権を「借地権」といい、その期間を「借地期間」といいます。 |
- |
|---|---|---|---|
| 総戸数 | 36 | 土地権利 | 所有権 |
| 構造
構造 物件の造りを表示しています。 |
RC | 管理会社 | (株)長谷工コミュニティ |
| 管理員の勤務形態 | 全部委託 | 管理人 | 日勤 |
| 施工会社 | (株)榎並工務店 | 増改築 | - |
| 間取詳細 | 1SLDK S:納戸(サービスルーム) | 建築確認番号 | - |
| その他の条件 | - | 特記事項 | ペット相談、日当り良好、角部屋 |
| 設備 | 電気、上水道、下水道、都市ガス、エレベーター、駐輪場、管理人室、オートロック | ||
| その他の設備 | - | ||
| 備考 | ペット可(規約による制限あり)可 | ||
| 取引態様 | 仲介 | ||
| 情報更新日 | 2025/12/01 | 次回更新予定日 | 2025/12/31 |
設備・特徴について
| 電気・水道・ガス | 電気、上水道、下水道、都市ガス |
|---|---|
| バス・トイレ | - |
| キッチン | - |
| 収納 | - |
| 設備・機能 | エレベーター、駐輪場、管理人室 |
| 冷暖房 | - |
| TV・通信 | - |
| セキュリティ | オートロック |
| 庭・バルコニー | - |
| その他 | - |
かんたん月額支払い試算
| 物件価格 | お借入額 | 自己資金 | 返済期間 | お借入れ金利 | 想定お支払額(月) | |
|---|---|---|---|---|---|---|
3,410万円 |
3,410万円 |
万円 | % | = |
万円 |
- ※試算結果はあくまでお支払の目安であり、実際の契約内容や金利動向により実際のご返済額と異なる場合がございます。
- ※実際のローン契約を行う場合は金融機関へご確認ください。
- ※上記費用以外に諸経費・修繕積立金・管理費などがかかる場合がございます。
- ※実際のローン契約の際、手数料や印紙税など別途諸経費がかかる場合がございます。
深江橋店のおすすめ物件特集
スマートフォンで
店舗ページを見る
福屋不動産販売 深江橋店
大阪府 / Osaka Metro中央線 深江橋駅徒歩1分
キッズスペースあり
駐車場あり
























