投資・収益 / 大阪府

条件変更

種別を選ぶ (複数可)

都道府県を選ぶ

探し方を選ぶ

ニューライフ高麗橋の物件詳細ページ|大阪府大阪市中央区の収益投資用物件

中古マンション

ニューライフ高麗橋

価格
1,480万円
ローンシミュレーション
現状利回り
-
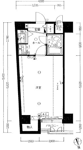
間取り
2K
所在地
大阪府大阪市中央区東高麗橋
交通
京阪電気鉄道京阪線 北浜駅 徒歩7分 他
築年月
1986(昭和61年)年1月(築40年)
所在階
3階/地上15階
専有面積
34.33㎡(10.38坪)壁芯
費用
管理費:8,040 円
修繕積立金:8,050 円
  • ペットOK

  • 駅近

  • 新築

  • 南向き

  • リフォーム

  • 駐車場あり

  • オール電化

  • オートロック

  • 角部屋

「ニューライフ高麗橋」のおすすめポイント

☆事務所使用可☆オーナーチェンジ物件
☆大阪メトロ堺筋線・京阪本線 北浜駅まで徒歩7分

ニューライフ高麗橋のパノラマ写真

自動再生

停止

拡大

縮小

フル画面

株式会社福屋不動産販売東住吉店

0120-34-2981

営業時間
10:00-19:00
定休日
火曜日・水曜日(一部例外有) 、GW、夏期、年末年始
東住吉店の店舗ページを見る

店舗ページを見る

物件番号:61105471002

ニューライフ高麗橋の物件情報

利回りとは各不動産の1年間の予定賃料収入の当該不動産取得対価に対する割合です。また公租公課その他当該物件を維持するために必要な諸費用の控除前のものです。予定賃料収入は確実に得られることを保証されるものではありません。

基本情報について

価格

1,480万円

ローンシミュレーション

所在地 大阪府大阪市中央区東高麗橋 (地図を見る
交通 京阪電気鉄道京阪線 北浜駅 徒歩7分  (北浜駅の一覧を見る
京阪電気鉄道京阪線 天満橋駅 徒歩9分  (天満橋駅の一覧を見る
大阪市谷町線 天満橋駅 徒歩9分  (天満橋駅の一覧を見る
築年月 1986(昭和61年)年1月(築40年)
間取り 2K
階数/階建 3階/地上15階
専有面積

専有面積

分譲マンションなどの区分所有権建物において、区分所有者が単独で所有している部分の専有部分の面積を「専有面積」といいます。

34.33㎡(10.38坪)壁芯
土地面積 -(-)-
用途地域

用途地域

都市計画法に基づく制度で、建築できる建物の制限を定めた地域のことを「用途地域」といいます。
第一種低層住居専用地域、第二種低層住居専用地域、第一種中高層住居専用地域、第二種中高層住居専用地域、第一種住居地域、第二種住居地域、準住居地域、田園住居地域、近隣商業地域、商業地域、準工業地域、工業地域、工業専用地域に類別されます。

商業
バルコニー面積 1.94㎡
主要採光面

主要採光面

室外の自然光を、窓などを通して室内に採り入れることを「採光」といい、主に採光を得る面の事を「主要採光面」と言います。

その他採光面 -
現況 賃貸中 引渡可能日 相談

費用関連について

管理費等 8,040 円 修繕積立金

修繕積立金

マンションの共用部分を維持・修繕するための「大規模修繕」などに必要な資金をまかなうため、積み立てておく金銭を「修繕積立金」といいます。

8,050 円
その他の費用 -
駐車場

詳細情報について

地目

地目

登記簿に記載されている土地の用途・種類のことを「地目」といい、田、畑、宅地、塩田、鉱泉地、池沼、山林、牧場、原野、墓地、境内地、運河用地、水道用地、用悪水路、ため池、堤、井溝、保安林、公衆用道路、公園、雑種地、学校用地、鉄道用地の23種類に区分されています。

- 地勢

地勢

土地の起伏や海面との位置情報どの土地の概況のことを言います。

-
都市計画

都市計画

適正な土地利用、都市施設の整備、市街地開発事業に関する計画で、都市の健全な発展と秩序ある整備を図るため都市計画法の規定により定められたものを「都市計画」といいます。

市街化区域 国土法届出 不要
接道状況

接道状況

敷地に面した道路の状況。

-
借地料 - 借地期間

借地期間

借地借家法により定められている、建物を所有する目的で設定された地上権、または建物を所有する目的で設定された土地賃借権を「借地権」といい、その期間を「借地期間」といいます。

-
その他制限 - (建物)構造

構造

物件の造りを表示しています。

SRC
総戸数 - 管理員の勤務形態 全部委託
管理会社 (株)ビケンテクノ 管理組合 有り
管理人 日勤 土地権利 所有権
施工会社 - 増改築 -
間取詳細 2K 建築確認番号 -
その他の条件 オーナーチェンジ 特記事項 事務所使用可
設備 電気、上水道、下水道、都市ガス、収納スペース、室内洗濯機置場、エレベーター
その他の設備 -
備考 ■賃料:60000円/月
取引態様 仲介
情報更新日 2026/02/19 次回更新予定日 2026/03/21

設備・特徴について

電気・水道・ガス 電気、上水道、下水道、都市ガス
バス・トイレ -
キッチン -
収納 収納スペース
設備・機能 室内洗濯機置場、エレベーター
冷暖房 -
TV・通信 -
セキュリティ -
庭・バルコニー -
その他 -

かんたん月額支払い試算

物件価格 お借入額 自己資金 返済期間 お借入れ金利 想定お支払額(月)

1,480万円

1,480万円

万円 %

=

万円

  • ※試算結果はあくまでお支払の目安であり、実際の契約内容や金利動向により実際のご返済額と異なる場合がございます。
  • ※実際のローン契約を行う場合は金融機関へご確認ください。
  • ※上記費用以外に諸経費・修繕積立金・管理費などがかかる場合がございます。
  • ※実際のローン契約の際、手数料や印紙税など別途諸経費がかかる場合がございます。

株式会社福屋不動産販売東住吉店

0120-34-2981

営業時間
10:00-19:00
定休日
火曜日・水曜日(一部例外有) 、GW、夏期、年末年始
東住吉店の店舗ページを見る

店舗ページを見る

物件番号:61105471002

周辺環境について画像をクリックすると拡大表示されます

大阪府大阪市中央区東高麗橋

GoogleMapで見る

京阪電気鉄道京阪線 北浜駅 徒歩7分 
京阪電気鉄道京阪線 天満橋駅 徒歩9分 
大阪市谷町線 天満橋駅 徒歩9分 

  • イメージ

    大阪市立東中学校(1100m)

  • No image

    大阪市立中大江小学校(400m)

  • No image

    ライフ天神橋店(100m)

  • No image

    セブンイレブン大阪島町2丁目店(230m)

  • No image

    京阪シティモール(700m)

同一マンションの別の物件ニューライフ高麗橋で売出中の別物件

  • 閲覧済
  • 閲覧中
価格
1,480万円
階数
3階
間取り
2K
専有面積
34.33㎡
採光面
  • 閲覧済
  • 閲覧中
価格
1,300万円
階数
8階
間取り
1K
専有面積
28.14㎡
採光面
北東
  • 閲覧済
  • 閲覧中
価格
1,480万円
階数
3階
間取り
2K
専有面積
34.33㎡
採光面

最近見た物件(50件)

ニューライフ高麗橋を購入するなら福屋不動産販売|FUKUYAの物件情報ページ

ニューライフ高麗橋の購入・売却は福屋不動産販売へお任せください。ニューライフ高麗橋に関するご質問・ご相談や内覧予約はお気軽にお問合せ下さい。ニューライフ高麗橋は大阪府大阪市中央区東高麗橋の売り出し中の収益投資用物件です。福屋不動産販売では、ニューライフ高麗橋以外にも大阪府大阪市中央区の物件を多数取り扱っています。大阪府大阪市中央区でマイホームをお探しの際は福屋不動産販売へお気軽にご相談ください。

スマートフォンで物件情報を見たい方は、このQRコードを読み取ってください

閉じる

FUKUYA ローンシミュレーション

物件価格
万円
自己資金
万円
お借り入れ金額 (物件価格-自己資金)
万円
税込み年収
万円
ボーナス返済総額
万円

※お借り入れ金額の50%未満が目安です

お借り入れ期間
お借り入れ金利

※一般的な銀行での変動金利となります

試算結果

月々のお支払額(年10回)
ボーナス月のお支払額(年2回)
年間お支払総額
お支払総額
返済比率

※一般的な目安 35%以内

その他、諸経費、修繕積立金、管理費等がかかる場合がございます。
詳細については掲載店舗までご相談下さい。

この物件の担当店舗へお問い合わせ

閉じる

まとめて資料請求する店舗を選択してください

取扱店舗1店舗

お気に入りに追加しました

OK

お気に入りについてご確認

お気に入りは30件までとなっております。

古いデータが削除されますがよろしいですか。

OK

キャンセル

ページの先頭へ